Product details
Product information
This Marlborough 10×10 log cabin is perfect for use as a summerhouse, workshop or extra storage space. Assembly required. Painted photo is for illustration only. Product is not supplied pre-painted.
- We recommend that log cabins are sited on pre-laid, level, solid and dry ground, with a foundation of concrete to give a stable and even footing for your cabin to sit on.
- Only fixings included
- For use as a summerhouse, workshop or extra storage space
Features and benefits
- Made using responsibly sourced, Forest Friendly timber
- This log cabin is supplied with comprehensive fitting instructions and fixings provided. 2 people are required to build
- We recommend that log cabins are sited on pre-laid, level, solid and dry ground, with a foundation of concrete to give a stable and even footing for your cabin to sit on
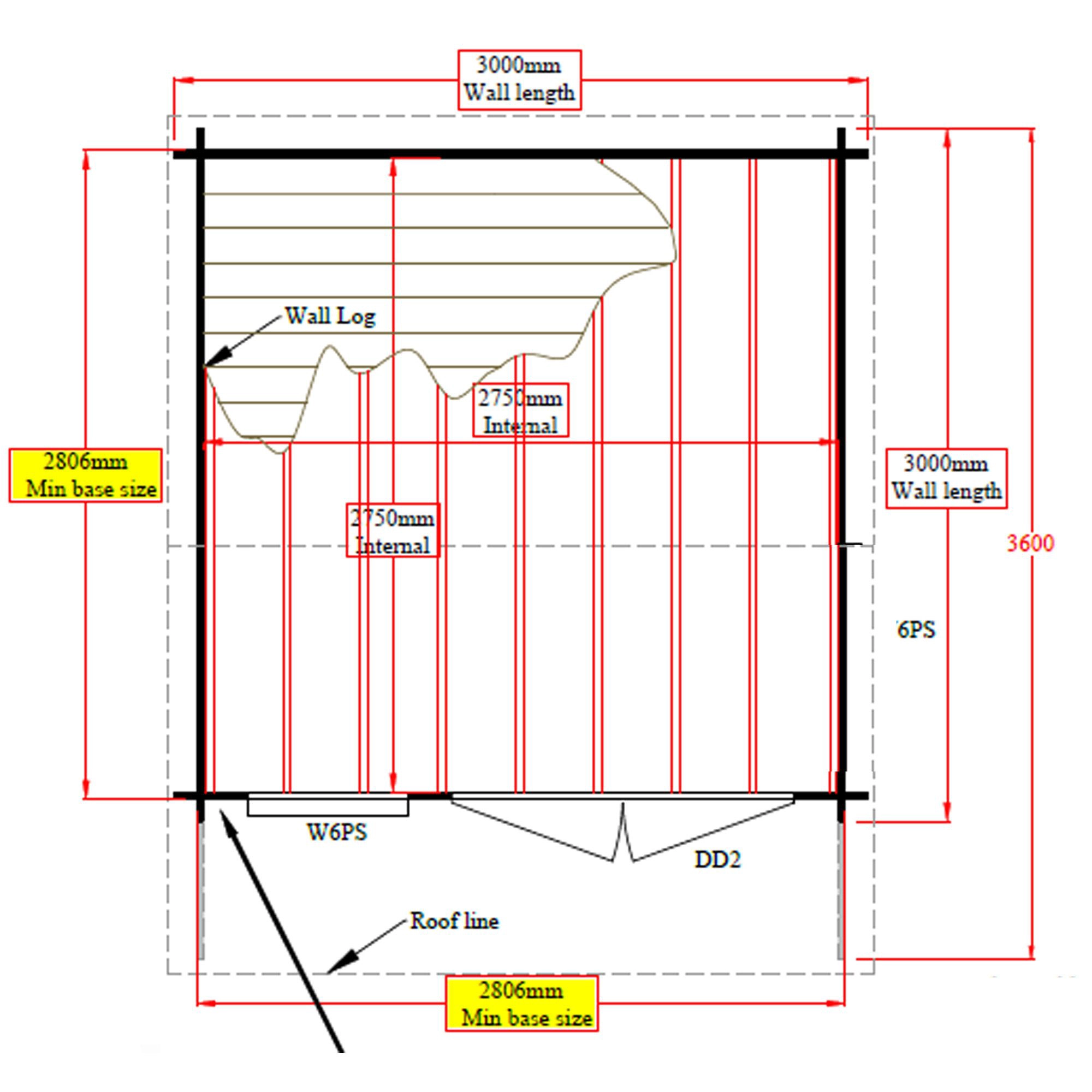
- The dimensions given refer to the external dimensions of the product unless otherwise stated
Specifications
| Base included | Base not included |
|---|---|
| Cladding thickness | 28mm |
| Cladding type | Tongue & groove |
| Depth (m) | 2.99m |
| Height (m) | 2.5m |
| Locking mechanism | Mortice lock |
| Made in | England |
| Material | European softwood |
| Number of doors | 2 |
| Number of fixed windows | 1 |
| Roof type | Apex |
| Width (m) | 2.99m |
| Product code | 5019804112326 |



























Reviews
There are no reviews yet.